Alberts Dairy

Alberts Dairy is a beautifully converted, single-storey barn designed for easy, comfortable living. Everything is on one level, thoughtfully laid out, with countryside calm built into every corner.

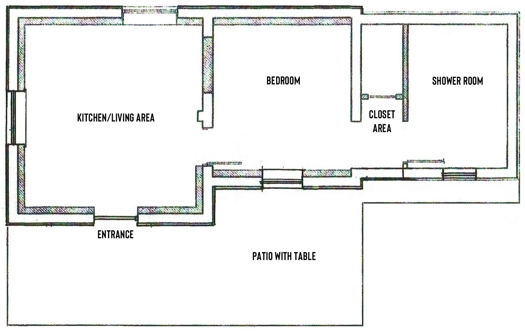
Albert's Dairy Floor Plan

Kitchen/Living Area

The heart of Alberts Dairy is the open-plan living space.

Converted barn kitchen with exposed brick and wood burner.

The living area has a comfortable two-seater sofa, a Smart TV, and an electric woodburner that gives a lovely glow without any effort — especially welcome after a blustery countryside walk.

The kitchen is designed to be genuinely practical as well as pleasing to spend time in. It is fully equipped for proper cooking, whether you’re rustling up a quick breakfast or taking your time over supper.

You’ll find an electric hob, a main oven with grill, and a microwave, alongside a fridge/freezer. The cupboards and work surfaces are stocked for everyday use, and you’re very welcome to help yourself to anything you find there.

We provide tea and coffee, along with a few other basic essentials, so you can settle straight in without needing to dash to the shops. If there’s something you need or can’t quite find, just let us know.

Recycling is important to us, so please use the dividers in the bin provided.

This is a relaxed, no-fuss space — the sort of kitchen you actually want to cook in, without feeling cut off from home comforts.

Bedroom with closet area

The bedroom sits right in the middle of the barn, and it’s incredibly quiet, offering a calm, uninterrupted night’s sleep.

Spacious bedroom with metal bed frame and exposed brick.
View through a bathroom with a blue vanity unit

The bed is wonderfully generous — a proper king-size with a deep, comfortable mattress. The frame is custom-made from scaffolding poles, deliberately industrial in feel and a quiet nod to the building’s working past, when this space was all about hard graft rather than rest.

Exposed red brick walls give the room a reassuring sense of solidity, while the high ceiling adds real breathing space. The window has a simple roller blind, there if you want it.

Conveniently next to the bathroom, there’s an open-plan closet area with a hanging rail. There’s plenty of space under the bed to tuck luggage away neatly.

Shower Room

We understand the value of really good bathroom facilities — it’s something we always notice when we travel ourselves — so the shower room at Alberts Dairy is designed around comfort rather than compromise.

Modern shower room with heated towel rail, blue vanity and walk-in shower.

There’s a fantastic shower with excellent pressure and oodles of hot water, perfect for long, lingering showers after a windy walk across the fields.

You’ll find generous surface space for toiletries, a roomy cupboard for storage, and a truly sumptuous heated towel rail — one of those details that guests comment on time and time again.

The edge-lit mirror is another favourite, giving soft, flattering light whether you’re getting ready for the day or winding down in the evening.

Modern shower room with rainfall shower and blue vanity.

Outside space

Outside, you’ll find a large private patio with table and chairs, perfect for morning coffee, a late lunch, or a glass of something whilst enjoying the amazing sunsets. The views stretch out across open farmland.

View through window to outdoor seating and countryside.

Alberts Dairy has its own private drive and generous parking for two cars, right beside the barn.

There’s also a secure bike store if you’re exploring on two wheels, and an electric car charging point available by prior arrangement (usage fee applies).

Everything here is self-contained and entirely yours during your stay, so although we’re on a working farm, your space feels calm, private and completely separate.

Alberts Dairy is a place that works just as well for doing very little as it does for exploring the area — whether that’s walking and cycling from the door, popping into Harleston or Bungay, visiting larger historical towns such as Bury St Edmunds and Norwich, or heading to the coast.